Grate gutter 3040. A15. Inset grille. L=3m. For concrete grid
Grate gutter 3040. A15. Inset grille. L=3m. For concrete grid
Grate gutter 3040. A15. Inset grille. L=3m. For concrete grid
Grate gutter 3040. A15. Inset grille. L=3m. For concrete grid

Grate gutter 3040. A15. Inset grille. L=3m. For concrete grid

Delta
Artikelnummer: 164U1304013

Dient besteld te worden

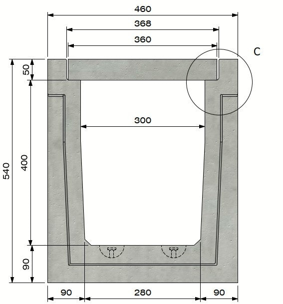
Self-supporting type I. Internal dimensions WxH=30x40cm (external dimensions WxH=46x49cm). Working length 3m. Load class A15 in accordance with EN1433. Concrete edge profile. Reinforced self-compacting concrete C60/75. Environmental classes XD3-XF4-XC4-XA3. Sustainability W+R. Tongue/groove connection. Lifting facility ball head anchors type DEHA. Installation instructions according to manufacturer's specifications. Standards in accordance with EN1433. For internal grille. Weight 820kg. Industrial gray concrete, not architectural concrete. Color variations and air bubble formation possible. In an industrial environment and/or for very intensive use, we recommend the version with a galvanized edge profile.

Often bought together with

Quality and innovation: Our brands

We partner with the best brands in water management, ensuring you receive sustainable and efficient solutions. From drainage to infiltration, our brands guarantee quality and innovation.