Kabelgoot-Kokergoot-Delta-T-D1-Diederen-Afwateringstechniek
Zelfdragende-Betongoot-4030-Klasse-D-400KN-Inliggend-Tekening-DWTN
Zelfdragende-Goten-Type-I-Inliggend-Inbouwtekening-DWTN
Kabelgoot-Kokergoot-Delta-T-D1-Diederen-Afwateringstechniek
Zelfdragende-Betongoot-4030-Klasse-D-400KN-Inliggend-Tekening-DWTN
Zelfdragende-Goten-Type-I-Inliggend-Inbouwtekening-DWTN

Cable duct 4030. D400. Inset lid. L=1m

DWTN
Artikelnummer: 164T1403041

Dient besteld te worden

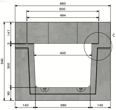
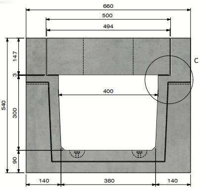
Self-supporting type I. Internal dimensions WxH=40x30cm (external dimensions WxH=66x54cm). Working length 1m. Load class D400 in accordance with EN1433. Concrete edge profile. Reinforced self-compacting concrete C60/75. Environmental classes XD3-XF4-XC4-XA3. Sustainability W+R. Tongue/groove connection. Lifting facility ball head anchors type DEHA. Installation instructions according to manufacturer's specifications. Standards in accordance with EN1433. For inset lid. Weight 400kg. Industrial gray concrete, not architectural concrete. Color variations and air bubble formation possible. In an industrial environment and/or for very intensive use, we recommend the version with a galvanized edge profile.

Often bought together with

Quality and innovation: Our brands

We partner with the best brands in water management, ensuring you receive sustainable and efficient solutions. From drainage to infiltration, our brands guarantee quality and innovation.