HDPE vetafscheider 7l/s. Slibvang 700l. Rechthoekig
HDPE vetafscheider 7l/s. Slibvang 700l. Rechthoekig
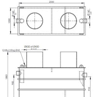
HDPE-Vetafscheider-7l-s-Slibvanger 700l-Rechthoekig-Tekening-DWTN
HDPE vetafscheider 7l/s. Slibvang 700l. Rechthoekig
HDPE vetafscheider 7l/s. Slibvang 700l. Rechthoekig
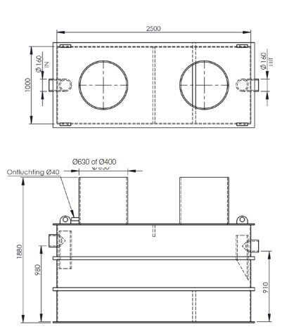
HDPE-Vetafscheider-7l-s-Slibvanger 700l-Rechthoekig-Tekening-DWTN

HDPE vetafscheider 7l/s. Slibvang 700l. Rechthoekig

DWTN
Artikelnummer: 157HVPO07

Dient besteld te worden

Materiaal HDPE. Afscheiding slib en vet in een compartiment. Inbouwdelen van HDPE. Voorzien van waterslot aan zowel de in- als uitlaatzijde. Vetopslagvolume 404l. Totaalvolume 1983l. Conform EN 1825, Voorzien van CE-markering. HDPE inlaat 160mm, HDPE uitlaat 160mm. LxBxH = 2500x1000x1880mm. 2x schacht 630mm. voorzien van ontluchtingsaansluiting 40mm. Aansluitdiepte inlaat 900mm, uitlaat 970mm. Exclusief afdekking. Inclusief van 4x hijsogen. Totaal gewicht 640kg.

Vaak samengekocht met

Kwaliteit en innovatie: Onze merken

Wij werken samen met de beste merken in waterbeheer, zodat jij verzekerd bent van duurzame en efficiënte oplossingen. Van afwatering tot infiltratie: onze merken staan garant voor kwaliteit en innovatie.