Kabelgoot-Kokergoot-Delta-T-D1-Diederen-Afwateringstechniek
Zelfdragende-Betongoot-4030-Klasse-D-400KN-Inliggend-Tekening-DWTN
Zelfdragende-Goten-Type-I-Inbouwtekening-DWTN
Kabelgoot-Kokergoot-Delta-T-D1-Diederen-Afwateringstechniek
Zelfdragende-Betongoot-4030-Klasse-D-400KN-Inliggend-Tekening-DWTN
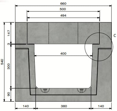
Zelfdragende-Goten-Type-I-Inbouwtekening-DWTN

Betonnen kabelgoot Delta T 4030. D400KN. L=3m. Inliggend deksel

DWTN
Artikelnummer: 164T1403043

Dient besteld te worden

Zelfdragend type I. Inwendige afmeting bxh=40x30cm (uitwendige afmeting bxh=66x54cm). Werkende lengte 3m. Belastingsklasse D400 conform EN1433. Betonnen randprofiel. Gewapend zelfverdichtend beton C60/75. Omgevingsklassen XD3-XF4-XC4-XA3. Duurzaamheid W+R. Verbinding tand/groef. Hijsvoorziening kogelkopankers type DEHA. Plaatsingsvoorschrift volgens opgave producent. Normering conform EN1433. T.b.v. inliggend deksel. Gewicht 1210kg. Industrieel grijs beton, geen architectonisch beton. Kleurschakeringen en luchtbelvorming mogelijk. In een industriële omgeving en/of bij zeer intensief gebruik raden wij de uitvoering met gegalvaniseerd randprofiel aan.

Vaak samengekocht met

Kwaliteit en innovatie: Onze merken

Wij werken samen met de beste merken in waterbeheer, zodat jij verzekerd bent van duurzame en efficiënte oplossingen. Van afwatering tot infiltratie: onze merken staan garant voor kwaliteit en innovatie.