Roostergoot 3050. A15. Inliggend rooster. L=1m. Tbv betonnen rooster
Roostergoot 3050. A15. Inliggend rooster. L=1m. Tbv betonnen rooster
Roostergoot 3050. A15. Inliggend rooster. L=1m. Tbv betonnen rooster
Roostergoot 3050. A15. Inliggend rooster. L=1m. Tbv betonnen rooster

Roostergoot 3050. A15. Inliggend rooster. L=1m. Tbv betonnen rooster

Delta
Artikelnummer: 164U1305011

Dient besteld te worden

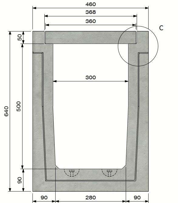
Zelfdragend type I. Inwendige afmeting bxh=30x50cm (uitwendige afmeting bxh=46x59cm). Werkende lengte 1m. Belastingsklasse A15 conform EN1433. Betonnen randprofiel. Gewapend zelfverdichtend beton C60/75. Omgevingsklassen XD3-XF4-XC4-XA3. Duurzaamheid W+R. Verbinding tand/groef. Hijsvoorziening kogelkopankers type DEHA. Plaatsingsvoorschrift volgens opgave producent. Normering conform EN1433. T.b.v. inliggend rooster. Gewicht 315kg. Industrieel grijs beton, geen architectonisch beton. Kleurschakeringen en luchtbelvorming mogelijk. In een industriële omgeving en/of bij zeer intensief gebruik raden wij de uitvoering met gegalvaniseerd randprofiel aan.

Vaak samengekocht met

Kwaliteit en innovatie: Onze merken

Wij werken samen met de beste merken in waterbeheer, zodat jij verzekerd bent van duurzame en efficiënte oplossingen. Van afwatering tot infiltratie: onze merken staan garant voor kwaliteit en innovatie.