Kabelkanal 4040. A15. Eingelassener Deckel. L=3m
Kabelkanal 4040. A15. Eingelassener Deckel. L=3m
Kabelkanal 4040. A15. Eingelassener Deckel. L=3m
Kabelkanal 4040. A15. Eingelassener Deckel. L=3m
Kabelkanal 4040. A15. Eingelassener Deckel. L=3m
Kabelkanal 4040. A15. Eingelassener Deckel. L=3m

Kabelkanal 4040. A15. Eingelassener Deckel. L=3m

Delta
Artikelnummer: 164T1404013

Dient besteld te worden

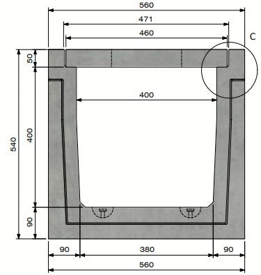
Selbsttragender Typ I. Innenmaße BxH=40x40cm (Außenmaße BxH=56x54cm). Arbeitslänge 3m. Belastungsklasse A15 gemäß EN1433. Betonkantenprofil. Bewehrter selbstverdichtender Beton C60/75. Umweltklassen XD3-XF4-XC4-XA3. Nachhaltigkeit W+R. Nut-Feder-Verbindung. Hebeanlagen-Kugelkopfanker Typ DEHA. Entsorgungshinweise gemäß Herstellerangaben. Geprüft nach EN 1433. Für eingelassenen Deckel. Gewicht 890kg. Industriegrauer Beton, kein Architekturbeton. Farbabweichungen und Luftblasenbildung möglich. Im industriellen Umfeld und/oder bei sehr intensiver Nutzung empfehlen wir die Ausführung mit verzinktem Randprofil.

Wird oft zusammen gekauft mit

Qualität und Innovation: Unsere Marken

Wir arbeiten mit den besten Marken im Wassermanagement zusammen und gewährleisten Ihnen nachhaltige und effiziente Lösungen. Von der Entwässerung bis zur Versickerung garantieren unsere Marken Qualität und Innovation.